Reef 998
Project general facts
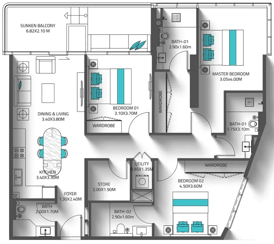
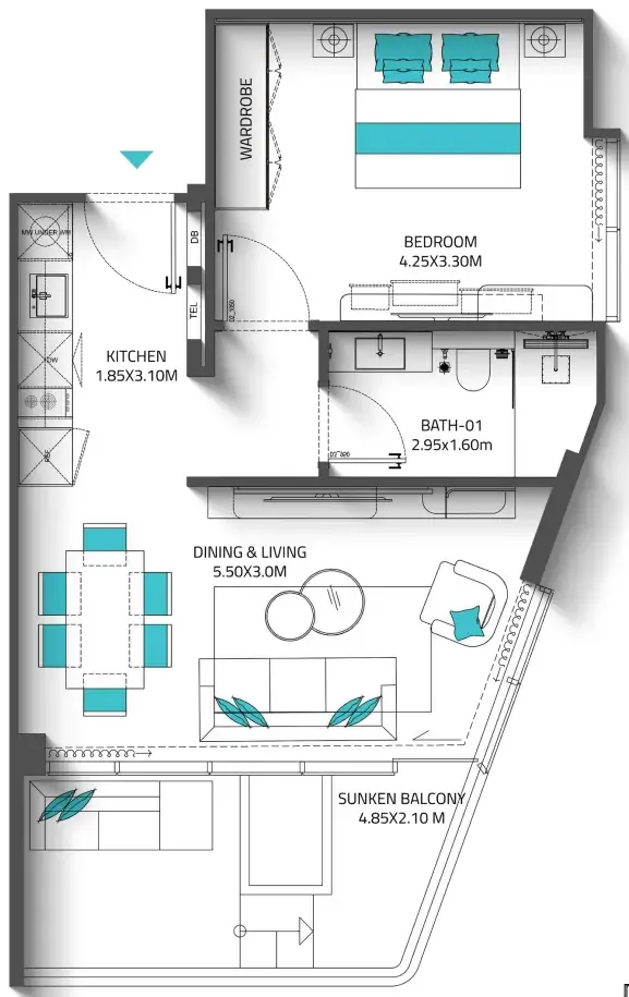
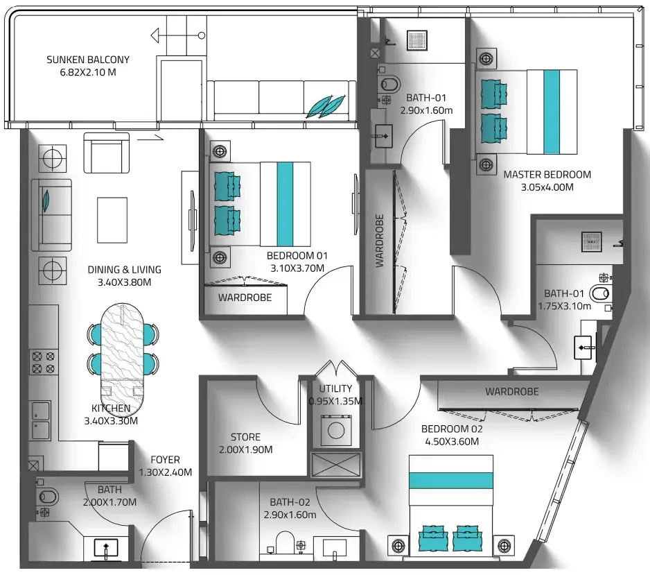
REEF 998 redefines city living with the exclusive Sunken Balcony concept with outdoor cooling, blending nature, comfort, and innovation. Located in Dubai Land Residence Complex (DLRC), it offers direct access to key destinations within a calm, connected community. With over 20 lifestyle amenities — including rooftop cinema, coworking spaces, and fitness zones — every detail is designed to enrich. Offering smartly planned units with elegant finishes, REEF 998 is where luxury meets value.
Balconies with outdoor cooling technology, revolutionizing the way outdoor spaces are experienced in the UAE. Enjoy cooled balconies and terraces all year round—an innovation that seamlessly blends wellness, comfort, and futuristic design.
Finishing and materials
Modern finishing with high-quality materials
Kitchen and appliances
Equipped kitchens
Furnishing
No
Location description and benefits
Dubailand is a sprawling and diverse community located in Dubai, offering a multitude of entertainment, leisure, and residential opportunities. This vibrant community is renowned for its wide range of attractions and experiences, making it a unique destination that caters to residents and visitors of all ages.
At the heart of Dubailand is its extensive array of world-class entertainment and leisure destinations. The community is home to numerous theme parks, including Dubai Parks and Resorts, which features Legoland, Motiongate, Bollywood Parks, and the immersive waterpark experience of Legoland Water Park. These attractions provide endless fun and entertainment for families, creating memorable experiences for both children and adults alike.
Dubailand also boasts a variety of sporting facilities and outdoor spaces, catering to the needs of sports enthusiasts and those seeking an active lifestyle. The community is home to renowned golf courses, tennis courts, cycling tracks, and expansive parks, providing opportunities for outdoor activities and leisurely pursuits.
- Project Name: Reef 998
- Developer: Reef Luxury Development
- Unit types: Apartment
- Construction Status: Under Construction
- Sale Status: On Sale
- Handover: Q2 2028
- Readiness progress: 0.19%
- Furnishing: Only kitchen
- Service Charge: 14-16 AED/sqft
- GEMS First Point School, The Villa: 2.4km
- Oasis Mall: 22.4km
- Nad Al Sheba Park: 12.1km
- Jumeira Public Beach: 24km
- Dubai International Airport: 24.5km
- Downtown Dubai: 19.1km


